Karakatu 1a
Rakenteilla – moderni ja viihtyisä paritalokoti Karhunmäessä
Tervetuloa Karhunmäkeen – rauhalliselle ja lapsiperheystävälliselle asuinalueelle, jossa luonto ja arjen helppous kohtaavat. Suosittu alue tarjoaa erinomaiset puitteet perhe-elämälle: koulu, päiväkoti, leikkipuistot ja muut palvelut sijaitsevat vain lyhyen matkan päässä ja alue on pääosin tätä tonttia lukuunottamatta rakennettu jo valmiiksi. Alueen koulupiiriin kuuluu, viimeisimmän tiedon mukaan, Karhunmäen koulu.
Tässä arkkitehdin suunnittelemassa kodissa yhdistyvät nykyaikainen rakentaminen, energiatehokkuus ja viihtyisä arki. Oma piha ja terassi tarjoavat oivat puitteet puutarhanhoitoon, leikkiin ja yhdessäoloon.
5 hyvää syytä valita Karakadun paritalo uudeksi kodiksesi:
– Edullinen ja energiatehokas asuminen
Nykyaikaiset ratkaisut, kuten poistoilmalämpöpumppu, vesikiertoinen lattialämmitys ja ilmalämpöpumppu, takaavat miellyttävän sisäilman ympäri vuoden. Tulikiven varaava takka, AAVA V1, sisältyy hintaan – halutessasi voit jättää sen pois, jolloin saat 5 000 € hyvityksen kauppahinnasta.
– Erinomaiset yhteydet ja palvelut
Kaupat, koulu, päiväkoti, apteekki ja muut arjen palvelut ovat lähellä. Joensuun keskustaan ajat nopeasti – tai pyöräilet mukavasti kauniissa maisemissa.
– Viihtyisä ja rauhallinen asuinympäristö
Karhunmäki tunnetaan perheystävällisyydestään ja luonnonläheisyydestään. Alue tarjoaa rauhallista asumista sekä monipuoliset ulkoilu- ja virkistysmahdollisuudet.
– Laadukas rakentaminen
Julkisivussa listaton panelointi, joka antaa sille kevyen ilmeen. Käytetyt materiaalit ovat huolella valittuja, ajattomia ja kestäviä. Varustelutaso on korkea, ja suunnittelussa on panostettu käytännöllisyyteen sekä viihtyisyyteen. Keittiössä Puustellin laadukkaat kalusteet.
– Korkea huonekorkeus ja laadukkaat kaihtimet
Huonekorkeus sisätiloissa korkeimmillaan jopa 2,85 m ja isoissa kiinteissä ikkunoissa Visor vekkikaihtimet.
– Palveleva rakennusliike
Rakentaja on helposti lähestyttävä ja asiakaslähtöinen – haluamme tehdä kodin ostamisesta sinulle mahdollisimman sujuvaa ja mukavaa.
Rakentaminen alkanut syksyllä 2025 ja kohde on muuttovalmis 30.06.2026. Pihatyöt valmistuvat kesän/syksyn 2026 aikana.
Varaa oma kotisi nyt ja pääset vaikuttamaan vielä pintamateriaaleihin!
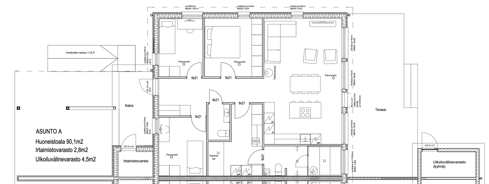
Huoneita:
4
Neliöt:
90m2
Asuinalue:
Karhunmäki
Velaton hinta:
259 000 €
Myyntihinta:
259 000 €
Ota yhteyttä
Asunto- ja kiinteistöpalvelu Varis LKV
Torikatu 7 a, 80110 Joensuu
Y-tunnus: 2334873-9
toimisto@asuntovaris.fi