Sulje

Olit sitten myymässä tai ostamassa asuntoa – laitamme asiat kerralla kuntoon. Ota rennosti ja jätä kiinteistönvälitys meille.

Yhteystiedot ja yhteydenottolomake

Ota yhteyttä

Siirry yhteydenottolomakkeelle

Yhteydenottolomakkeelle

Karakatu 1b

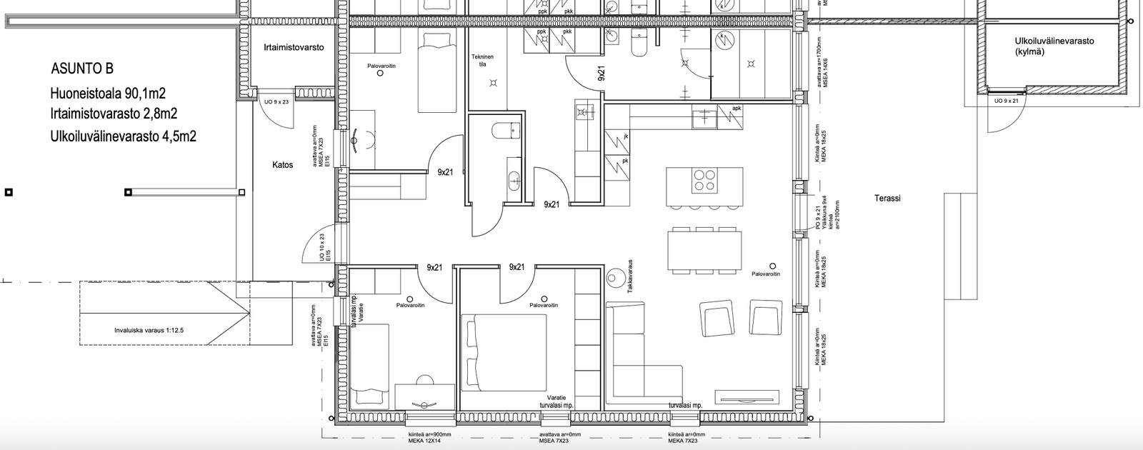
Ennakkomarkkinoinnissa – moderni ja viihtyisä paritalokoti Karhunmäessä

Tervetuloa Karhunmäkeen – rauhalliselle ja lapsiperheystävälliselle asuinalueelle, jossa luonto ja arjen helppous kohtaavat. Suosittu alue tarjoaa erinomaiset puitteet perhe-elämälle: koulu, päiväkoti, leikkipuistot ja muut palvelut sijaitsevat vain lyhyen matkan päässä ja alue on pääosin tätä tonttia lukuunottamatta rakennettu jo valmiiksi. Alueen koulupiiriin kuuluu, viimeisimmän tiedon mukaan, Karhunmäen koulu.

Tässä kodissa yhdistyvät nykyaikainen rakentaminen, energiatehokkuus ja viihtyisä arki. Oma piha ja terassi tarjoavat oivat puitteet puutarhanhoitoon, leikkiin ja yhdessäoloon.

5 hyvää syytä valita Karakadun paritalo uudeksi kodiksesi:

– Edullinen ja energiatehokas asuminen
Nykyaikaiset ratkaisut, kuten poistoilmalämpöpumppu, vesikiertoinen lattialämmitys ja ilmalämpöpumppu, takaavat miellyttävän sisäilman ympäri vuoden. Varaava takka sisältyy hintaan – halutessasi voit jättää sen pois, jolloin saat 5 000 € hyvityksen kauppahinnasta.

– Erinomaiset yhteydet ja palvelut
Kaupat, koulu, päiväkoti, apteekki ja muut arjen palvelut ovat lähellä. Joensuun keskustaan ajat nopeasti – tai pyöräilet mukavasti kauniissa maisemissa.

– Viihtyisä ja rauhallinen asuinympäristö
Karhunmäki tunnetaan perheystävällisyydestään ja luonnonläheisyydestään. Alue tarjoaa rauhallista asumista sekä monipuoliset ulkoilu- ja virkistysmahdollisuudet.

– Laadukas rakentaminen
Käytetyt materiaalit ovat huolella valittuja, ajattomia ja kestäviä. Varustelutaso on korkea, ja suunnittelussa on panostettu käytännöllisyyteen sekä viihtyisyyteen.

– Palveleva rakennusliike
Rakentaja on helposti lähestyttävä ja asiakaslähtöinen – haluamme tehdä kodin ostamisesta sinulle mahdollisimman sujuvaa ja mukavaa.

Rakentaminen alkaa syyskuussa 2025 ja arvioitu valmistuminen kesällä 2026.

Varaa oma kotisi nyt ja pääset vaikuttamaan vielä pintamateriaaleihin!

Huoneita:

4 h

Neliöt:

90.0m2

Asuinalue:

Karhunmäki

Velaton hinta:

259 000 €

Myyntihinta:

259 000 €

Jaa kohde:

Ota yhteyttä

Asunto- ja kiinteistöpalvelu Varis LKV

Torikatu 7 a, 80110 Joensuu
Y-tunnus: 2334873-9
toimisto@asuntovaris.fi

Olen kiinnostunut