Sulje

Olit sitten myymässä tai ostamassa asuntoa – laitamme asiat kerralla kuntoon. Ota rennosti ja jätä kiinteistönvälitys meille.

Yhteystiedot ja yhteydenottolomake

Ota yhteyttä

Siirry yhteydenottolomakkeelle

Yhteydenottolomakkeelle

Höytiäisentie 18

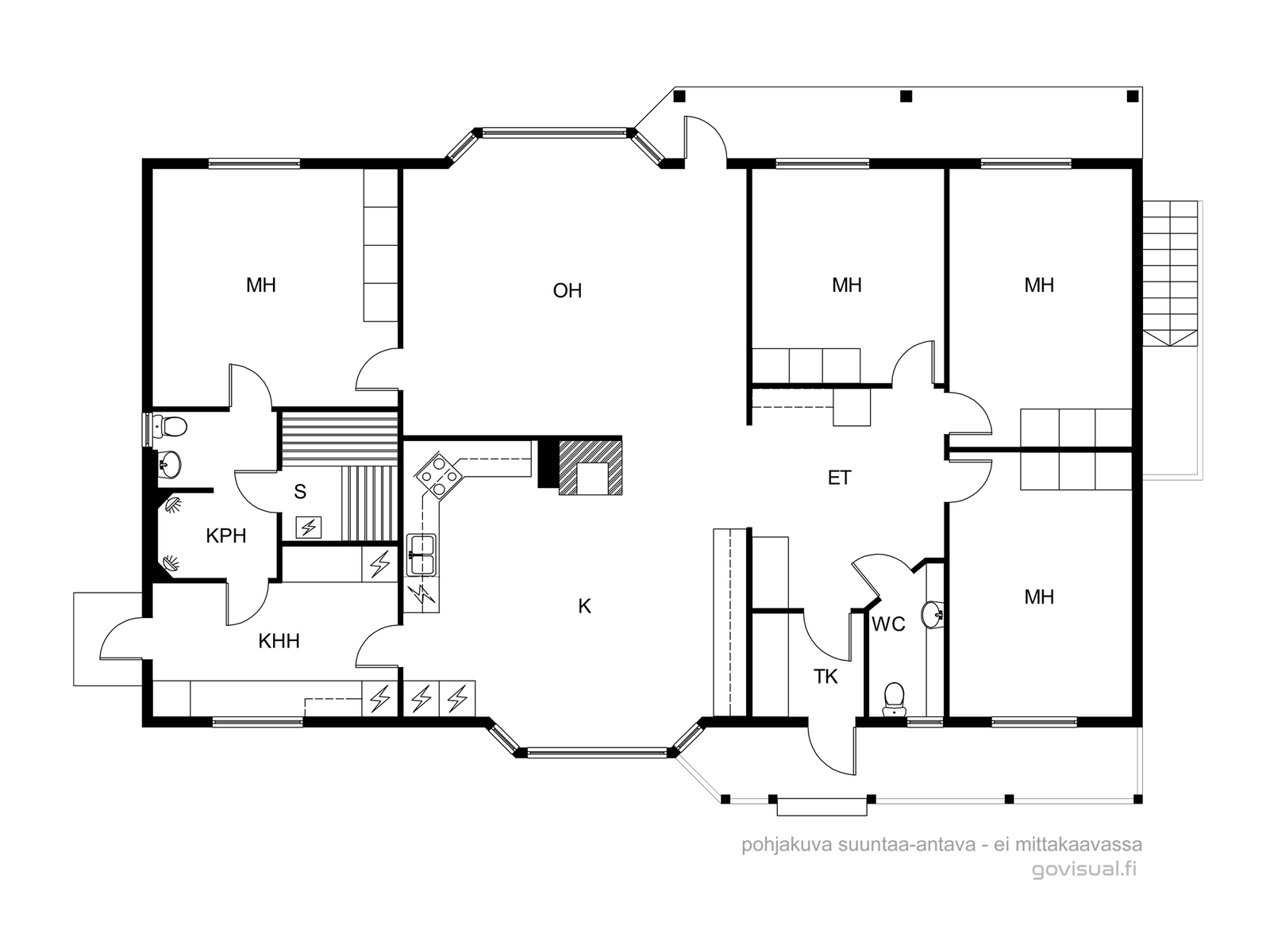
Valoisa ja toimivalla pohjaratkaisulla toteutettu omakotitalo Kydön rauhallisella asuinalueella!

Vuonna 2003 valmistunut 135 m² omakotitalo tarjoaa viihtyisää ja käytännöllistä asumista. Talossa on neljä makuuhuonetta, jotka soveltuvat niin perheenjäsenille makuuhuoneiksi kuin työ- tai harrastetiloiksi. Tilava keittiö tarjoaa hyvin taso- ja säilytystilaa, ja sen yhteyteen mahtuu hyvin isompikin ruokailuryhmä. Valoisasta olohuoneesta on käynti takapihan terassille.

Kodinhoitohuoneesta on oma uloskäynti ja runsaasti käytännöllistä taso- ja säilytystilaa kodin askareille ja pyykkihuollolle. Kylpyhuone on varustettu kahdella suihkulla, ja oma sauna kutsuu rentoutumaan. Talossa on kaksi wc:tä: yksi kylpyhuoneessa ja toinen erillinen wc eteisen yhteydessä.

Lämmitysmuotona sähkölämmitys, jonka lisäksi olohuoneen ja keittiön väliin sijoittuu takka/leivinuuni, joka tarjoaa lämpöä ja tunnelmaa kotiin. Lisäksi olohuoneessa on ilmalämpöpumppu, joka toimii lämmityksen tukena talvisin ja viilentää kodin kesäisin.

1133m² Joensuun kaupungin vuokratontilla sijaitseva kokonaisuus tarjoaa tilavan pihan oleskeluun ja pihapeleihin. Pihan ajoväylä asfaltoitu ja pihapiirissä on lämmin talousrakennus, johon sisältyy autotalli, tilava varasto ja puuliiteri.

Kydön viihtyisä asuinalue tarjoaa hyvät kulkuyhteydet autolla, pyörällä ja julkisilla. Pilkon kaupat ja Noljakan palvelut löytyvät läheltä.

Huoneita:

5 h

Neliöt:

135.0m2

Asuinalue:

Kytö

Energialuokka:

D2018

Velaton hinta:

199 000 €

Myyntihinta:

199 000 €

Jaa kohde:

Ota yhteyttä

Asunto- ja kiinteistöpalvelu Varis LKV

Torikatu 7 a, 80110 Joensuu
Y-tunnus: 2334873-9
toimisto@asuntovaris.fi

Olen kiinnostunut