Sulje

Olit sitten myymässä tai ostamassa asuntoa – laitamme asiat kerralla kuntoon. Ota rennosti ja jätä kiinteistönvälitys meille.

Yhteystiedot ja yhteydenottolomake

Ota yhteyttä

Siirry yhteydenottolomakkeelle

Yhteydenottolomakkeelle

Penttilänkatu 9

Ennakkomarkkinoinnissa – poikkeuksellinen uudiskohde Joensuun Penttilänrannassa

Penttilänrantaan nousee upea uudiskohde, jonka huoneistokoot vaihtelevat 41 m² kaksiosta aina hulppeaan, 164 m²:n 5 huoneen huoneistoon. Kerroksissa 1–6 on neljä huoneistoa per kerros, ja ylimmässä 8 kerroksessa vain kaksi asuntoa – näin asukkaille taataan avaruutta ja yksityisyyttä.

Huoneistojen suunnittelussa on panostettu toimiviin pohjaratkaisuihin ja korkeaan laatuun. Huonekorkeus on noin 2,9 metriä (poislukien alaslasketut kattopinnat), mikä lisää ennestään tilan tuntua. Keittiöissä integroidut kodinkoneet sulautuvat tyylikkäästi kalusteisiin, ja kolmioita suuremmissa huoneistoissa erillisuuni sekä liesitaso sijoitettu saarekkeeseen. Lattiat ovat parkettia ja seinäpinnat maalatut. Ostajilla on mahdollisuus vaikuttaa pintamateriaaleihin sisustusarkkitehdin avustuksella, ja markkinoinnin alkuvaiheessa myös pohjaratkaisuihin voidaan tehdä muutoksia.

Huoneistojen tilavat lasitetut parvekkeet ja parvekkeiden puoleiset ikkunat Pielisjoelle päin.

Taloyhtiö liitetään kaukolämpöön, ja lämmitys toteutetaan vesikiertoisella lattialämmityksellä. Lisäksi kaikissa huoneistoissa on valmius huoneistokohtaisen viilennyksen asentamiseen.

Autohallipaikat myydään erillisinä osakkeina. Paikkoja on yhteensä 49, joista 24 sijaitsee rakennuksen alla ja 25 viereisessä, Suvantosillan alapuolella sijaitsevassa autohallissa. Rakennuksen alla olevissa autohallipaikoissa on valmius sähköauton lataukseen.

Penttilänranta on Joensuun keskustan luonteva jatke – alueella yhdistyvät moderni asuminen ja palveluiden läheisyys.

Kohteen arvioitu rakentamisen aloitus vuoden 2026 aikana ja kohteen arvioitu valmistusaika kevät 2028.

Kohteeseen mahdollista tutustua rakennuspaikalla! Ota yhteyttä, niin käydään paikanpäällä tutustumassa suunnitelmiin, ympäristöön ja maisemiin!

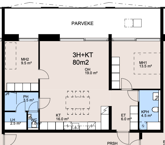
Huoneita:

3

Neliöt:

80m2

Asuinalue:

Penttilä

Velaton hinta:

419 900 €

Myyntihinta:

190 623 €

Jaa kohde:

Ota yhteyttä

Asunto- ja kiinteistöpalvelu Varis LKV

Torikatu 7 a, 80110 Joensuu
Y-tunnus: 2334873-9
toimisto@asuntovaris.fi

Olen kiinnostunut